Rollins College Dining Hall
Winter Park, Florida
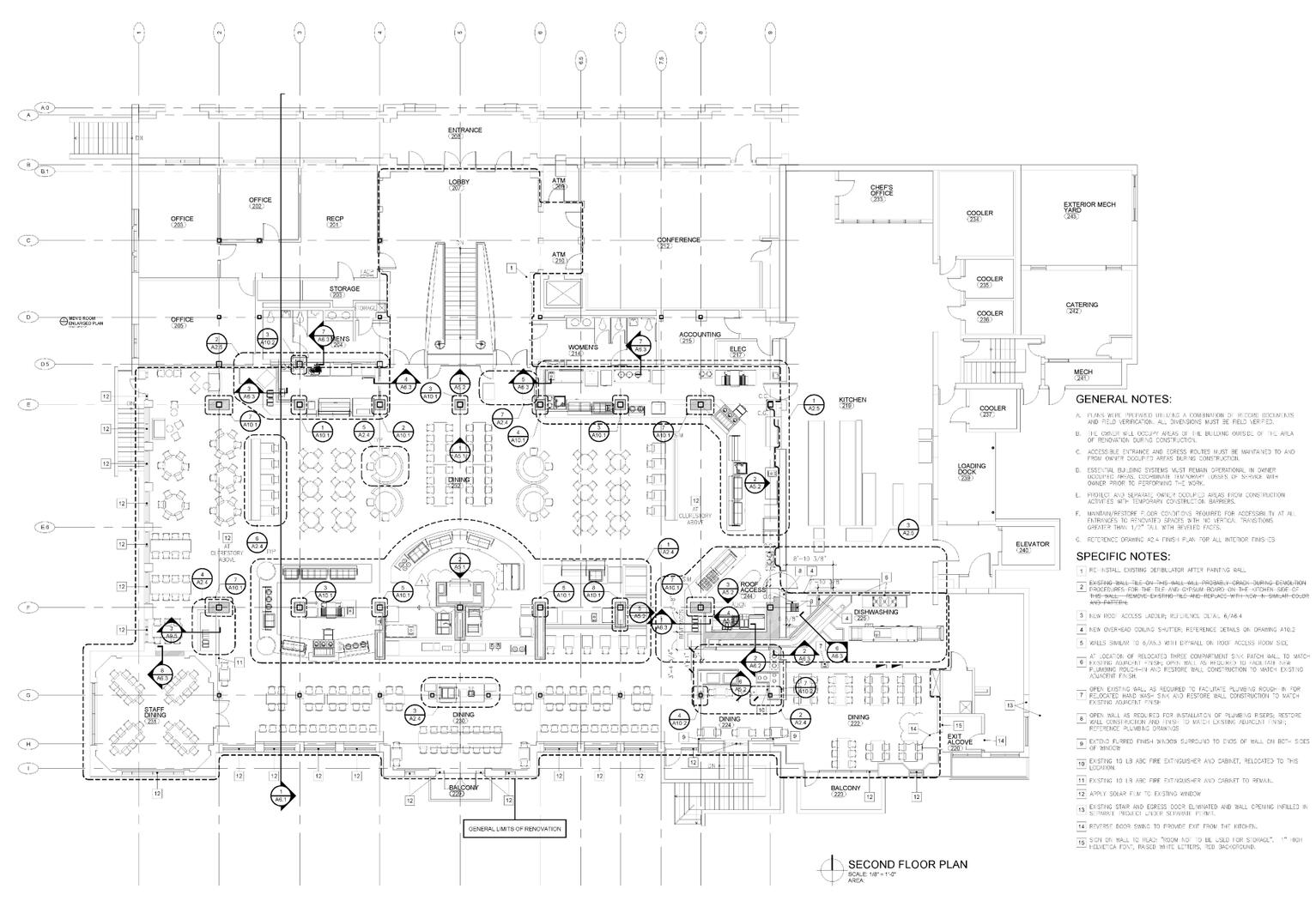
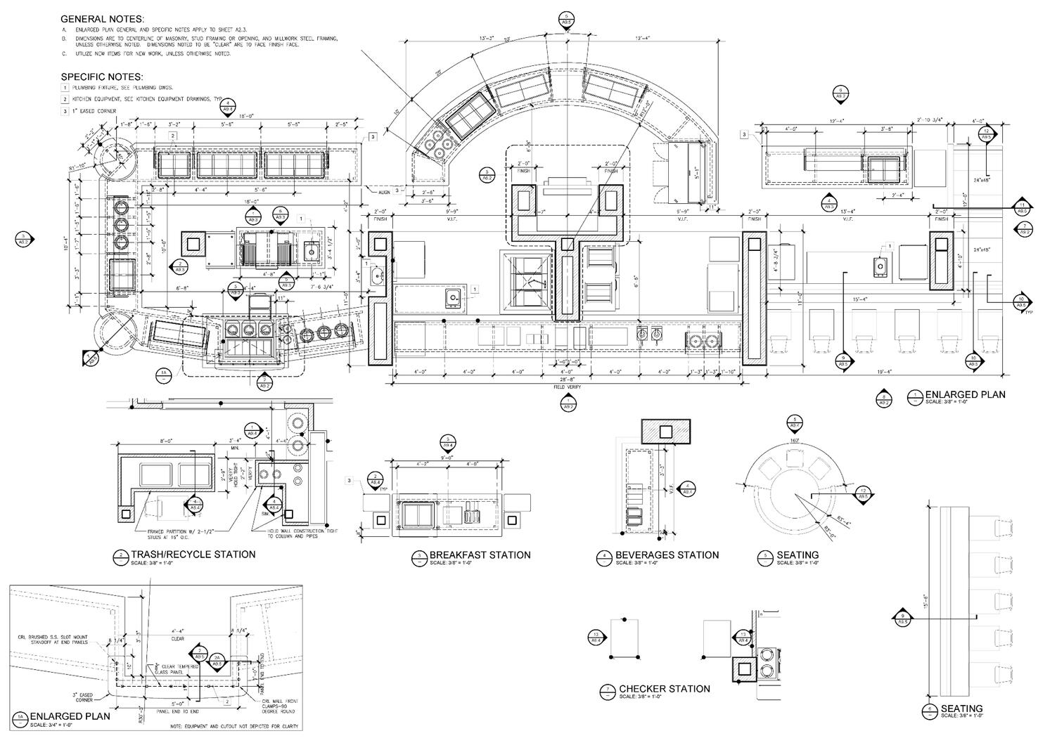
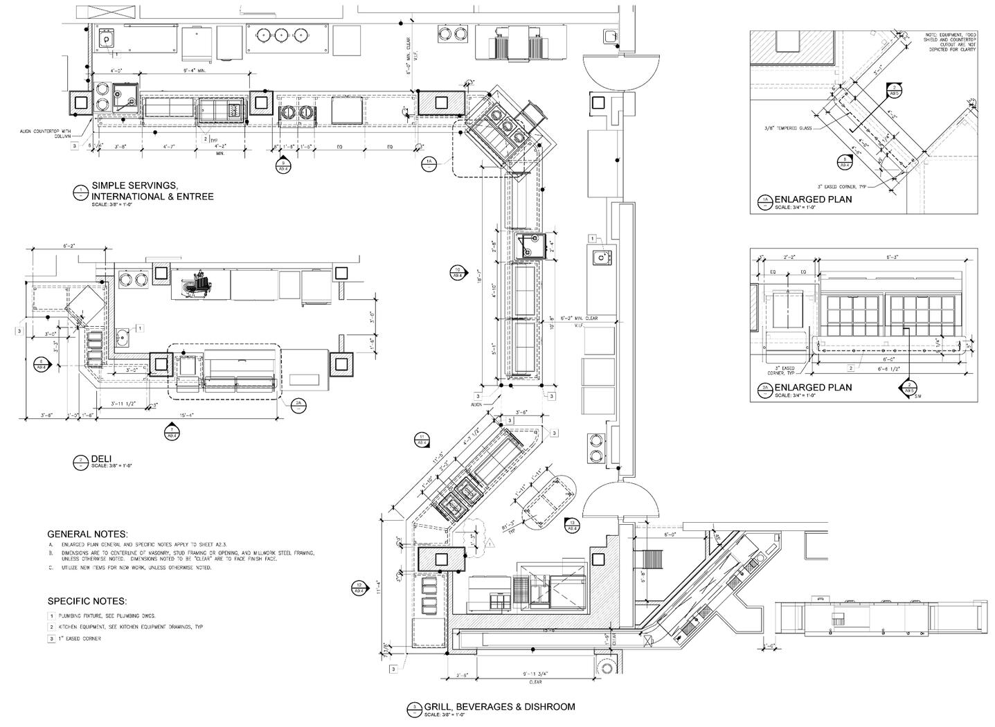
The 2019 Skillman Dining Hall Renovation for Rollins College was a $2.4 million project that involved a complete interior finish upgrade with new flooring, furnishings, equipment, and food service stations. The length of the service line was increased by utilizing creative solutions. Seat count was increased by adding bar-style seating along with the window as well as bringing an under-utilized adjacent meeting room into the dining hall seating area. With a large open plan surrounded by food stations that offer a wide variety of options, the dining hall has reclaimed its standing as the premier campus dining hall.










